Get 10% off your first package purchase
Lorem ipsum dolor sit amet, consetetur sadipscing elitr, sed diam nonumy eirmod tempor invidunt

San Antonio, TX 78204, USA
oscar_eade
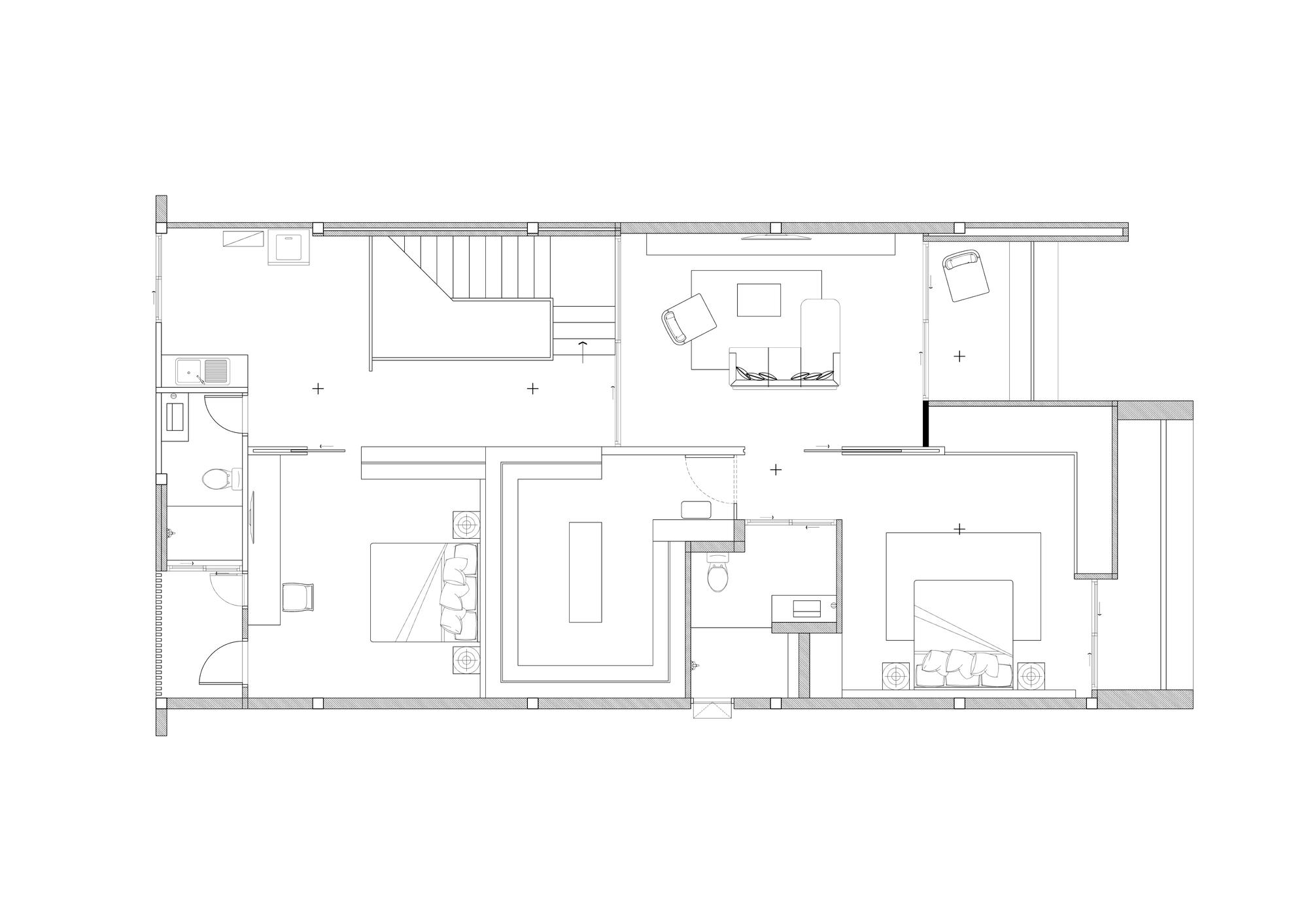
**THIS HOME FEATURES OVER $59,000 IN UPGRADES!** The Driskill is an exciting new 1-story in our Encore Collection. This south facing home offers 4 bedrooms, 3 full baths, study, and a 2-car garage with added storage. The open kitchen features our trademark immensely sized kitchen island upgrade with trash can pull- out cabinet and drawer banks, Silestone quartz counters, 42" white shaker style cabinetry, and stainless-steel appliances with 5-burner cooktop. This home is graced with luxury vinyl plank floors for durability and elegance. The homesite is 8,218 sq ft and offers an oversized covered back porch with room for a pool, dog run, and garden!
Hays County’s newest master-planned community offering new homes for sale in Mountain City located on the west side. Framed by an interconnected system of green belts and parks located along Mustang Branch which flows into Onion Creek, the community boasts 422-acres along FM 150. The master plan connects the
Lorem ipsum dolor sit amet, consetetur sadipscing elitr, sed diam nonumy eirmod tempor invidunt
Share On
Facebook
Linkedin
Twitter
Whatsapp
SMS
Mail